
HYDRO-BLOK Recessed Shower Niche
The HYDRO-BLOK Recessed Shower Niche is a shower niche constructed for recessed installation within tiled shower walls using a single-piece XPS foam core, fiberglass mesh reinforcement, and a modified cement coating.
This tile shower niche installs directly into standard wall framing and provides a waterproof, tile-ready surface without requiring additional liners or surface-applied coatings.
The one-piece construction forms a rigid cavity that maintains shape during installation and supports direct bonding of tile using standard thinset mortars. The niche is designed to fit within 16 inch on-center stud bays and can be installed horizontally or vertically depending on layout requirements.
The cement-coated surface allows tile or stone to be installed directly to the niche interior, creating a recessed storage area within the shower wall while maintaining continuous waterproof performance.
Key Features
- Waterproof One-Piece Construction: XPS foam core with reinforced cement coating forms a waterproof niche body.
- Standard Stud Bay Fit: Designed for 16" on-center wall framing.
- Prefab Shower Niche Design: Factory-formed recess eliminates on-site niche fabrication.
- Tile Ready Surface: Accepts direct installation of tile or stone.
- System Compatibility: Integrates with HYDRO-BLOK shower system components.
Specifications
| Part Number | Overall Size | Interior Size |
|---|---|---|
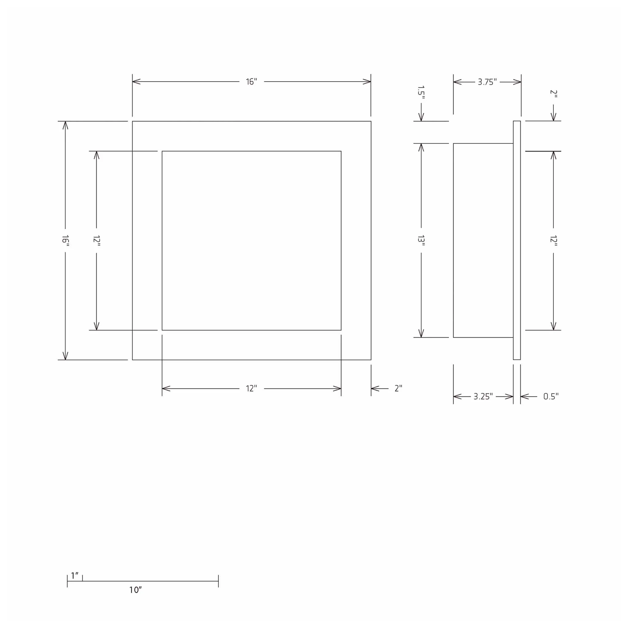
| HBRSN1616 | 16" x 16" x 4" | 12" x 12" x 3" |
| HBRBHSN1622 | 16" x 22" x 4" | 12" x 18" x 3" |
| HBRSN1628 | 16" x 28" x 4" | 12" x 24" x 3" |
| HBRDWSN3216 | 32" x 16" x 4" | 28" x 12" x 3" |
| HBRDASN3226 | 32" x 26" x 4" | 28" x 22" x 3" |
This shower wall niche is used to provide recessed storage within tiled shower assemblies.
The HYDRO-BLOK Recessed Shower Niche is a shower niche constructed for recessed installation within tiled shower walls using a single-piece XPS foam core, fiberglass mesh reinforcement, and a modified cement coating.
This tile shower niche installs directly into standard wall framing and provides a waterproof, tile-ready surface without requiring additional liners or surface-applied coatings.
The one-piece construction forms a rigid cavity that maintains shape during installation and supports direct bonding of tile using standard thinset mortars. The niche is designed to fit within 16 inch on-center stud bays and can be installed horizontally or vertically depending on layout requirements.
The cement-coated surface allows tile or stone to be installed directly to the niche interior, creating a recessed storage area within the shower wall while maintaining continuous waterproof performance.
Key Features
- Waterproof One-Piece Construction: XPS foam core with reinforced cement coating forms a waterproof niche body.
- Standard Stud Bay Fit: Designed for 16" on-center wall framing.
- Prefab Shower Niche Design: Factory-formed recess eliminates on-site niche fabrication.
- Tile Ready Surface: Accepts direct installation of tile or stone.
- System Compatibility: Integrates with HYDRO-BLOK shower system components.
Specifications
| Part Number | Overall Size | Interior Size |
|---|---|---|
| HBRSN1616 | 16" x 16" x 4" | 12" x 12" x 3" |
| HBRBHSN1622 | 16" x 22" x 4" | 12" x 18" x 3" |
| HBRSN1628 | 16" x 28" x 4" | 12" x 24" x 3" |
| HBRDWSN3216 | 32" x 16" x 4" | 28" x 12" x 3" |
| HBRDASN3226 | 32" x 26" x 4" | 28" x 22" x 3" |
This shower wall niche is used to provide recessed storage within tiled shower assemblies.
Original: $94.64
-70%$94.64
$28.39Description
The HYDRO-BLOK Recessed Shower Niche is a shower niche constructed for recessed installation within tiled shower walls using a single-piece XPS foam core, fiberglass mesh reinforcement, and a modified cement coating.
This tile shower niche installs directly into standard wall framing and provides a waterproof, tile-ready surface without requiring additional liners or surface-applied coatings.
The one-piece construction forms a rigid cavity that maintains shape during installation and supports direct bonding of tile using standard thinset mortars. The niche is designed to fit within 16 inch on-center stud bays and can be installed horizontally or vertically depending on layout requirements.
The cement-coated surface allows tile or stone to be installed directly to the niche interior, creating a recessed storage area within the shower wall while maintaining continuous waterproof performance.
Key Features
- Waterproof One-Piece Construction: XPS foam core with reinforced cement coating forms a waterproof niche body.
- Standard Stud Bay Fit: Designed for 16" on-center wall framing.
- Prefab Shower Niche Design: Factory-formed recess eliminates on-site niche fabrication.
- Tile Ready Surface: Accepts direct installation of tile or stone.
- System Compatibility: Integrates with HYDRO-BLOK shower system components.
Specifications
| Part Number | Overall Size | Interior Size |
|---|---|---|
| HBRSN1616 | 16" x 16" x 4" | 12" x 12" x 3" |
| HBRBHSN1622 | 16" x 22" x 4" | 12" x 18" x 3" |
| HBRSN1628 | 16" x 28" x 4" | 12" x 24" x 3" |
| HBRDWSN3216 | 32" x 16" x 4" | 28" x 12" x 3" |
| HBRDASN3226 | 32" x 26" x 4" | 28" x 22" x 3" |
This shower wall niche is used to provide recessed storage within tiled shower assemblies.




















